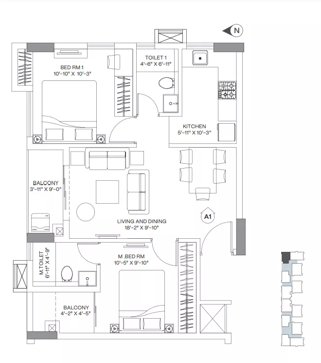
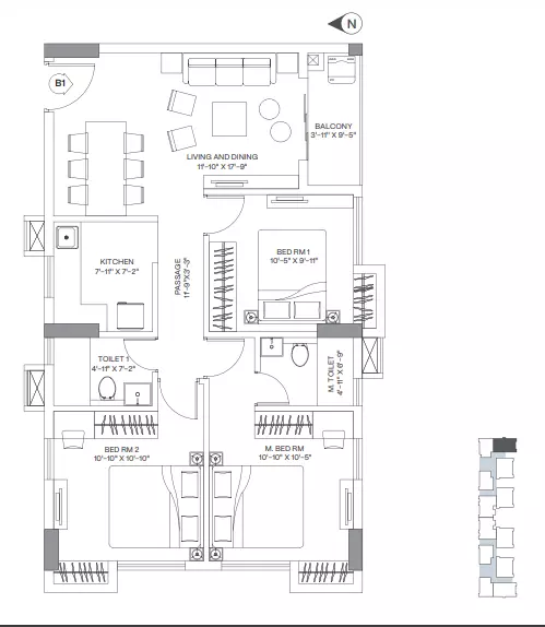
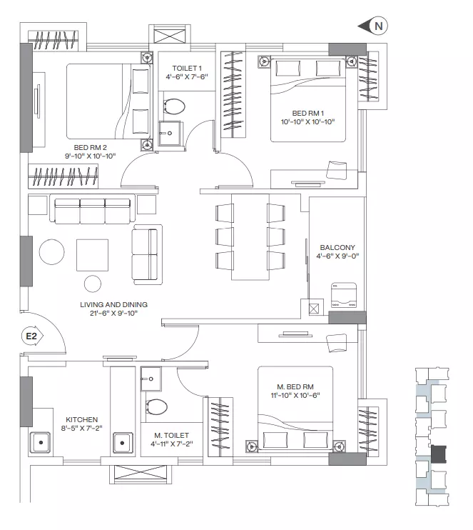
Jade Grove
Where timeless memories meet modern elegance.
Jade Grove, nestled near Entally in Central Kolkata, is a serene retreat for those who seek unmatched sophistication without leaving the comfort of their familiar world. Step through its grand entrance and discover a life beautifully reimagined – where the streets you’ve always known now lead you to an experience you’ve never imagined before.
Here, every detail is designed to reflect grace and exclusivity. Lush green canopies embrace thoughtfully crafted residences, creating a rare blend of tranquility and contemporary living. It’s a place that keeps you rooted in your cherished memories of childhood, friendships, and neighbourhood ties – while elevating your lifestyle to new heights.
At Jade Grove, home is not just where you live – it’s where nostalgia and modernity converge, giving you the best of both worlds.
Jade Grove – an address that feels like home, yet lives like a dream.













